Leave a Message

Thank you for your message. We will be in touch with you shortly.

Explore Our Properties

Property Description

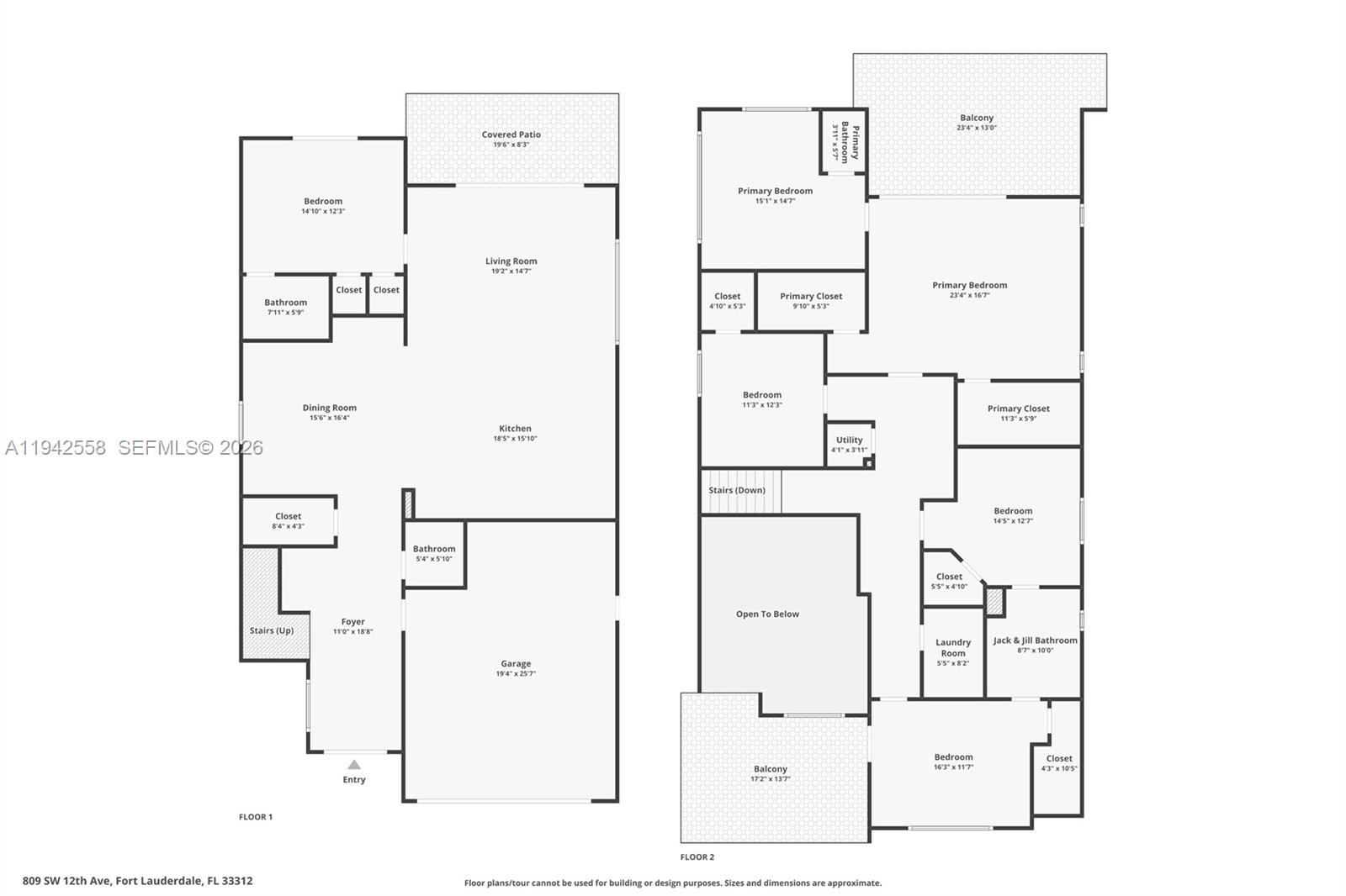
This brand-new construction residence in the heart of Riverside offers contemporary luxury, spacious design, and an unbeatable location. Featuring 5 bedrooms and 3.5 bathrooms, this home is filled with natural light and showcases soaring ceilings with an open-concept layout. The primary suite is located upstairs and includes walk-in closets, while the gourmet kitchen is perfect for both everyday living and entertaining.
The outdoor space shines with a saltwater pool and spa, plus a covered summer kitchen with BBQ--ideal for relaxing or hosting guests.
This residence offers a 2-car attached garage, a driveway for up to 6 vehicles, and an electric vehicle charging station.
Just steps from Riverside Cafe and a neighborhood park with tennis and pickleball courts, and only minutes to Downtown Fort Lauderdale, Las Olas Boulevard, and Fort Lauderdale International Airport, this home delivers the perfect blend of modern style, comfort, and location.

Overview

Property Status
For Sale
Lot Size
6,459 Sq.Ft.
MLS ID
A11942558
Property Type
Residential
Year Built
2025

Features & Amenities

Total Area
4,138 Sq.Ft.
Neighborhood
Riverside Park
Architecture Styles
Detached, Two Story, Modern/Contemporary
View Description
Garden, Pool
Garage Spaces
2.0
Water Source
Municipal Water
Pool
In Ground
Roof
Metal Roof
Lot Features
Less Than 1/4 Acre Lot
Parking
Driveway, Electric Vehicle Charging Station(s), Paver Block
Heat Type
Central
Air Conditioning
Central Air
Laundry Room
Utility Room/Laundry
Fireplace
Decorative
Appliances
Dishwasher, Disposal, Dryer, Microwave, Gas Range, Refrigerator, Washer
Other Interior Features
First Floor Entry, Pantry, Walk-In Closet(s), Other, Utility Room/Laundry
Sewer
Public Sewer
Security Features
Smoke Detector
Other Exterior Features
Barbeque, Lighting
Sales Price
$2,199,000
Real Estate Tax
$7,833/yr
Zoning
RD-15

Downloads

809 SW 12th Ave

Schedule a Tour

I would love to help you see this beautiful home! As a full-service brokerage, I can help you tour. Please submit an offer, and answer questions about the buying process.

Thank you

for your interest in 809 SW 12th Ave, Fort Lauderdale, FL 33312

Mortgage Calculator

Estimate your monthly mortgage payment, including the principal and interest, property taxes, and HOA. Adjust the values to generate a more accurate rate.
$0,000 Your Payment 20 15 65
$0,000 Your Payment
809 SW 12th Ave
Navigate
Riverside Park

Explore Riverside Park

26.1130° N, 80.1606° W

read more
809 SW 12th Ave
explore in 3d

I'm Interested In

809 SW 12th Ave

or
  • CallHanh Dinh

    License #3366443

    (305) 772-4596
  • Start Your Next Chapter

    Featured Properties

    Handpicked homes in top neighborhoods, ready for you to explore.

    • 604 SW 7th St For Sale

      $2,499,000

      604 SW 7th St, Fort Lauderdale, FL 33315

      • 4 Beds
      • 5 Baths
      • 3,347 Sq.Ft.
    • 809 SW 12th Ave For Sale

      $2,199,000

      809 SW 12th Ave, Fort Lauderdale, FL 33312

      • 5 Beds
      • 4 Baths
      • 3,347 Sq.Ft.
    • 912 SE 13th St For Sale

      $1,595,000

      912 SE 13th St, Fort Lauderdale, FL 33316

      • 4 Beds
      • 4 Baths
      • 2,619 Sq.Ft.
    View All

    Follow Us On Instagram